Villa singola in vendita

Cardano Al Campo, Via curiel
€ 279.000
Prezzo aggiornato
4 locali 4 locali
273 Mq 273 Mq
3 bagni 3 bagni

Villa singola in vendita

Cardano Al Campo, Via curiel

Descrizione annuncio

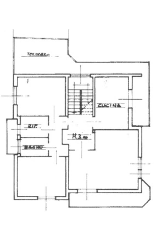
La soluzione sorge in posizione ottima per raggiungere i principali servizi offerti dal Cuoricino, tra cui scuole e negozi ed a breve distanza dal comune di Gallarate. Disposta su due livelli abitativi, grazie alla sua composizione si presta ad ospitare anche due nuclei familiari. Il piano terra è formato da soggiorno con cucina a vista, camera e servizio. A completamento del piano troviamo un laboratorio da adibire alla propria attività oltre a due ulteriori locali serviti da un piccolo wc. Il piano primo è raggiungibile da una scala interna. Tutti gli ambienti sono dotati di generosa metratura; ne è un esempio il soggiorno doppio capace di ospitare al suo interno la zona living e la zona pranzo. La cucina, abitabile, è servita da un ampio terrazzo che affaccia sul retro della soluzione. Il corridoio accompagna ai locali dedicati al riposo. Oltre ai doppi servizi, sono presenti due comode camere da letto. L'area esterna di proprietà è ampia e ben organizzata e si sviluppa principalmente su due lati dell'immobile. Il piano seminterrato è formato da un'ampia cantina ed un locale tecnico.

Mostra tutto

Nelle vicinanze

Trasporto pubblico Trasporto pubblico
Gallarate
Gallarate
2,4 Km
Via Lario - Via Da Gallarate (Gallarate)
Via Lario - Via Da Gallarate (Gallarate)
1,0 Km
Via Noè - Largo Verrotti di Pianella (Gallarate)
Via Noè - Largo Verrotti di Pianella (Gallarate)
1,0 Km
Ricariche auto elettriche Ricariche auto elettriche
Ressolar Cardano al Campo Martiri di Kindù
540 m
Carrefour Arnate
1,0 Km
CC Malpensa UNO Carrefour | EnelX
1,1 Km
Svoltando Parcheggio Seprio Park Multipiano interrato
1,8 Km
Stazione di Gallarate | ENELX
2,3 Km
Scuole Scuole
Scuola Primaria Alessandro Manzoni
430 m
Scuola Secondaria di Primo Grado Maria Montessori
430 m
ISIS Andrea Ponti
870 m
Scuola Primaria Ada Negri
930 m
Aloisianum
1,1 Km
Farmacia Farmacia
Farmacia comunale
440 m
Farmacia
1,1 Km
Farmacia dei Ronchi
1,5 Km
Farmacia Introini
1,7 Km
Farmacia Gallaratese
1,9 Km
Ospedali Ospedali
Azienda Ospedaliera Sant'Antonio Abate - Gallarate
1,8 Km
Supermercati Supermercati
Tigros
530 m
Carrefour Iper
1,1 Km
Carrefour Market
1,5 Km
EuroSpin
1,7 Km
Lidl
1,8 Km
Negozi Negozi
Pane - Amore e Fantasia
690 m
Intimissimi
1,0 Km
French Kiss
1,1 Km
Scampini
1,4 Km
Tutto A Meno
1,6 Km
Bar Bar
Haus Garden
1,3 Km
My Sushi
1,8 Km
Night Club Argentina
1,9 Km
Mimì & Cocò
1,9 Km
Bar
1,9 Km
Ristoranti Ristoranti
La Scogliera
820 m
Degustibus
1,1 Km
Ristoranti
1,3 Km
WEN
1,3 Km
Bon Appetit
1,4 Km
Mostra tutto

Caratteristiche

Rif.:
61122814
Piano:
Su più livelli di 3
Totale piani:
3
Balconi:
2
Terrazzi:
1
Camere da letto:
3
Mostra tutto
Prezzo Prezzo
€ 279.000
Rata mutuo Rata mutuo
€ 1.317 / mese
Spese annue Spese annue
€ 0
Proponi il tuo prezzoProponi il tuo prezzo

Classe Energetica

G
G
G
G
G
G
G
G
G
EP globale non rinnovabile:
408.78 kW h/m² anno
EP invernale del fabbricato:
EP estiva del fabbricato:
Anno di costruzione:
1967
Riscaldamento:
Autonomo
Tipo impianto:
A radiatori
Tipo alimentazione:
Metano

Prezzo ridotto di €1 (6%%)

Ti interessa visionare l'immobile?

Fissa un appuntamento  Fissa un appuntamento

Richiedi informazioni

Clicca su Leggi per aprire l'informativa
* Questi campi sono obbligatori

Calcola il tuo mutuo

Semplice e senza impegno
Anticipo

( % )
Mutuo

( % )

pochi semplici passi

inserisci i tuoi dati
Questionario completato
Grazie per aver richiesto un appuntamento senza impegno con un nostro Consulente del Credito e Assicurativo.

Hai inserito correttamente tutti i dati necessari e a breve riceverai una e-mail con un link da convalidare per inviare i tuoi dati.
Affiliato
Studio Sant'Anastasio Srl
P.zza Sant'Anastasio, 7 21010 Cardano Al Campo (VA)

Il nostro staff


  • Emanuela Bottiani
    Coordinatrice

  • Cristina Ferrario
    Affiliata
P.zza Sant'Anastasio, 7 21010 Cardano Al Campo (VA)
Zona: Cardano al Campo
Mostra su mappa
Orari: DA LUNEDI' A VENERDI' 09.00-12.30 15.00-19.30 SABATO 09.00-12.30
Affiliato
Studio Sant'Anastasio Srl
P.zza Sant'Anastasio, 7 21010 Cardano Al Campo (VA)

2025 Tecnocasa Franchising S.p.A. - P. IVA 08365160152 - Via Monte Bianco 60/A 20089 Rozzano (MI). Ogni agenzia ha un proprio titolare ed è autonoma. Privacy policy | Policy utilizzo | Cookie policy