Casa indipendente in vendita

Cardano Al Campo, Via gramsci
€ 295.000
3 locali 3 locali
176 Mq 176 Mq
1 bagno 1 bagno

Casa indipendente in vendita

Cardano Al Campo, Via gramsci

Descrizione annuncio

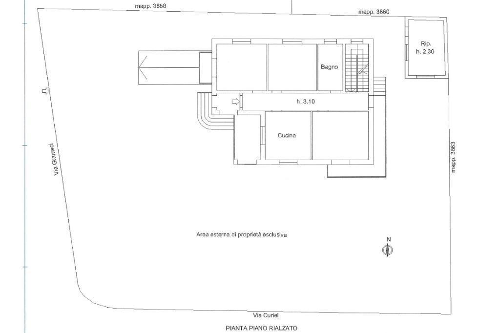
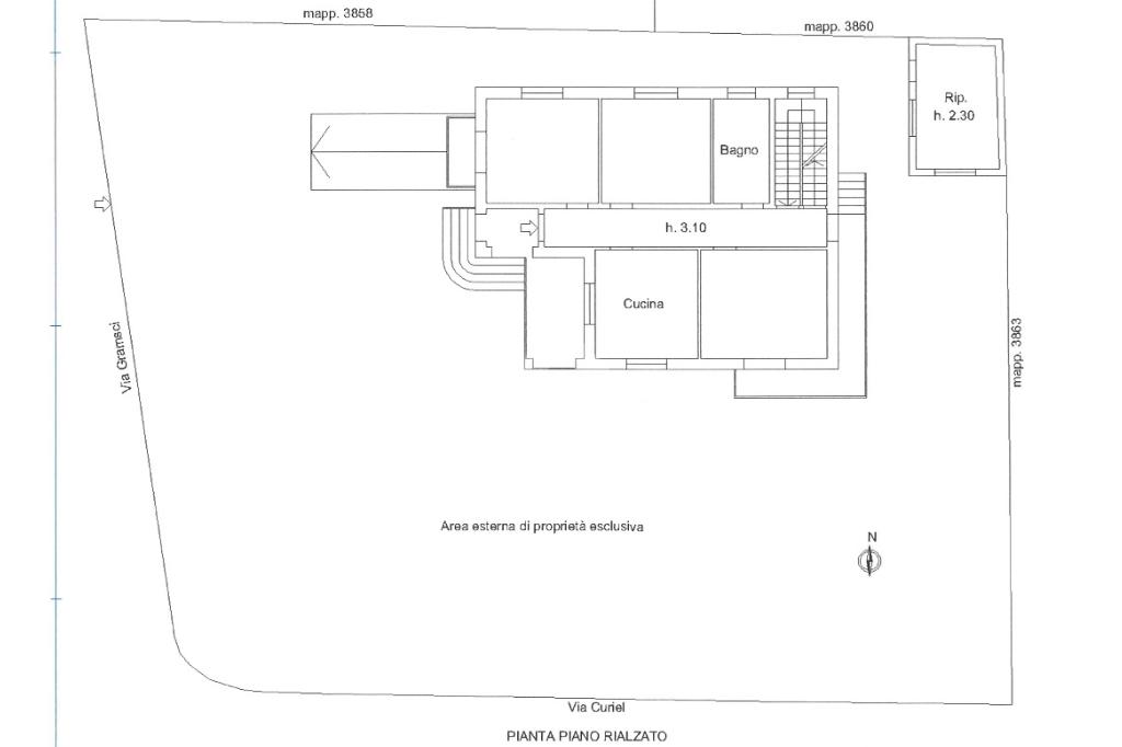
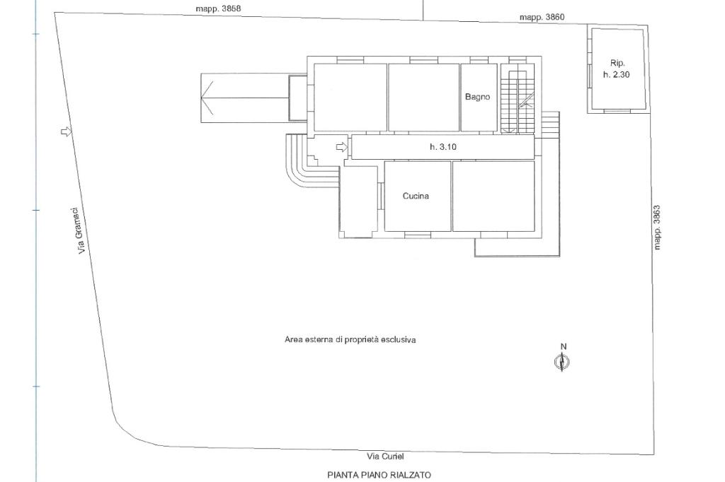
Posizionata in zona residenziale allo stesso tempo comoda per i collegamenti, la soluzione sorge su un lotto di circa 750 mq, risultando ideale per chi è alla ricerca di un ampio giardino ben esposto al sole. Libera su quattro lati, è favorita da una totale indipendenza. Un elegante terrazzo accompagna all'ingresso dell'abitazione. Ideale per chi è alla ricerca di un piano abitativo su unico livello, è formata da soggiorno, cucina, due camere matrimoniali e bagno. Valore aggiunto alla proprietà, è dato dalla presenza di un ampio seminterrato ideale come box e cantina raggiungibile da scala interna. Un ripostiglio esterno sul retro dell'abitazione completa la soluzione.

Mostra tutto

Nelle vicinanze

Trasporto pubblico Trasporto pubblico
Gallarate
Gallarate
2,6 Km
Via Noè - Largo Verrotti di Pianella (Gallarate)
Via Noè - Largo Verrotti di Pianella (Gallarate)
1,2 Km
Via Lario - Via Da Gallarate (Gallarate)
Via Lario - Via Da Gallarate (Gallarate)
1,3 Km
Ricariche auto elettriche Ricariche auto elettriche
Ressolar Cardano al Campo Martiri di Kindù
440 m
Carrefour Arnate
1,2 Km
CC Malpensa UNO Carrefour | EnelX
1,3 Km
Svoltando Parcheggio Seprio Park Multipiano interrato
2,0 Km
Stazione di Gallarate | ENELX
2,5 Km
Scuole Scuole
Scuola Primaria Alessandro Manzoni
340 m
Scuola Secondaria di Primo Grado Maria Montessori
390 m
Scuola Primaria Ada Negri
1,0 Km
ISIS Andrea Ponti
1,1 Km
ISIS Gadda Rosselli
1,2 Km
Farmacia Farmacia
Farmacia comunale
600 m
Farmacia
1,3 Km
Farmacia dei Ronchi
1,5 Km
Farmacia Introini
1,9 Km
Parafarmacia San Cristoforo
2,1 Km
Ospedali Ospedali
Azienda Ospedaliera Sant'Antonio Abate - Gallarate
2,0 Km
Supermercati Supermercati
Tigros
520 m
Carrefour Iper
1,3 Km
Carrefour Market
1,6 Km
EuroSpin
1,9 Km
Lidl
2,0 Km
Negozi Negozi
Pane - Amore e Fantasia
640 m
Intimissimi
1,3 Km
French Kiss
1,3 Km
Scampini
1,6 Km
Tutto A Meno
1,8 Km
Bar Bar
Haus Garden
1,5 Km
Night Club Argentina
1,8 Km
My Sushi
1,9 Km
Mimì & Cocò
2,0 Km
Kaffe Rosso
2,1 Km
Ristoranti Ristoranti
La Scogliera
560 m
Ristoranti
1,3 Km
Degustibus
1,4 Km
Nel buco del mulo
1,4 Km
WEN
1,5 Km
Mostra tutto

Caratteristiche

Rif.:
61180856
Piano:
Rialzato di 2
Totale piani:
2
Balconi:
3
Camere da letto:
2
Arredamento:
Assente
Mostra tutto
Prezzo Prezzo
€ 295.000
Rata mutuo Rata mutuo
€ 1.398 / mese
Proponi il tuo prezzoProponi il tuo prezzo

Classe Energetica

G
G
G
G
G
G
G
G
G
EP globale non rinnovabile:
722.72 kW h/m² anno
EP globale rinnovabile:
0.00 kW h/m² anno
EP invernale del fabbricato:
EP estiva del fabbricato:
Anno di costruzione:
1960
Riscaldamento:
Autonomo
Tipo impianto:
A radiatori
Tipo alimentazione:
Gasolio

Ti interessa visionare l'immobile?

Fissa un appuntamento  Fissa un appuntamento

Richiedi informazioni

Clicca su Leggi per aprire l'informativa
* Questi campi sono obbligatori

Calcola il tuo mutuo

Semplice e senza impegno
Anticipo

( % )
Mutuo

( % )

pochi semplici passi

inserisci i tuoi dati
Questionario completato
Grazie per aver richiesto un appuntamento senza impegno con un nostro Consulente del Credito e Assicurativo.

Hai inserito correttamente tutti i dati necessari e a breve riceverai una e-mail con un link da convalidare per inviare i tuoi dati.
Affiliato
Studio Sant'Anastasio Srl
P.zza Sant'Anastasio, 7 21010 Cardano Al Campo (VA)

Il nostro staff


  • Emanuela Bottiani
    Coordinatrice

  • Cristina Ferrario
    Affiliata
P.zza Sant'Anastasio, 7 21010 Cardano Al Campo (VA)
Zona: Cardano al Campo
Mostra su mappa
Orari: DA LUNEDI' A VENERDI' 09.00-12.30 15.00-19.30 SABATO 09.00-12.30
Affiliato
Studio Sant'Anastasio Srl
P.zza Sant'Anastasio, 7 21010 Cardano Al Campo (VA)

2026 Tecnocasa Franchising S.p.A. - P. IVA 08365160152 - Via Monte Bianco 60/A 20089 Rozzano (MI). Ogni agenzia ha un proprio titolare ed è autonoma. Privacy policy | Policy utilizzo | Cookie policy